






































- Superficie: 430 m²
- Año: 2022
- Tipo: Vivienda
- Ubicación: Luque, Paraguay
Arquitectos
Viviana Pozzoli
Horacio Cherniavsky
Gabriela Ocampos, Patricio Duarte, Gabriela Roura, Juan Corvalán, Franco Pinazzo
Fotógrafo
Federico Cairoli
http://www.federicocairoli.com/
contacto@federicocairoli.com
Paisajismo
Primitivo
A medida que pasa el tiempo, los criterios arquitectónicos se adaptan al conocimiento colectivo y a las cualidades que consideramos fundamentales. Aunque el enfoque de la práctica ha evolucionado a lo largo del constante proceso de construcción de la disciplina, el objetivo principal de la arquitectura sigue siendo el mismo desde que el humano extiende la búsqueda de su habitar más allá del simple hecho de dar cobijo, y es el de elevar nuestra relación existencial del estar en el mundo.
Con la creación de espacios que nos conecten a un sentido de pertenencia al contexto, al lugar y al entorno, consolidamos nuestra relación con el medio, entendiendo que el habitar en sentido cualitativo está condicionado por la configuración de esos espacios. Los canales para construir ese bienestar varían y dependen de muchos factores, pero podemos identificar y consensuar ciertas consideraciones que favorecen a la construcción de un lugar que nos impacte positivamente y nos emocione.
El contacto constante con la vegetación y la naturaleza ha demostrado que nuestro vínculo con el entorno y el medioambiente es inextricable. En este caso, se utilizan plantas autóctonas como principio del paisajismo, apostando a la flora local y defendiendo la biodiversidad natural que promueve este tipo de vegetación. La presencia de plantas representa la vida, y en una vivienda no solamente mejora la calidad del aire, sino también la calidad de la experiencia arquitectónica, especialmente cuando la vegetación es la protagonista. Esa amalgama entre lo artificial y lo natural representa nuestra relación con el mundo que habitamos.
La luz natural, controlada y tamizada, juega un papel crucial en la creación de espacios que nos conecten con el tiempo, las estaciones y el movimiento. La ventilación cruzada en todos los espacios garantiza la renovación de oxígeno y la regulación de la temperatura y la humedad durante los meses cálidos. Nos parece fundamental crear una arquitectura que controle y permita la conexión entre el interior y el exterior, que respire y regule la luz y la ventilación.
El uso de materiales naturales también es parte de esta búsqueda arquitectónica, optando por materiales locales como la piedra, el ladrillo, la madera y el hormigón. Estos materiales son transformados y trabajados por mano de obra artesanal y local, imprimiendo un saber y una tradición que representan los modos de hacer en nuestro contexto.
Cada material, a su vez, responde a la lógica de su propia naturaleza. La piedra conforma la base de la casa, ligada a la tierra por su peso y su comportamiento como muros de contención. Luego vienen los ladrillos, elementos más livianos que permiten un apilamiento y una disposición que organiza los espacios de las plantas superiores. La madera, mucho más liviana, nos permite generar paneles móviles, mobiliario y puertas. Y el hormigón, por su lado, nos da la libertad de organizar la estructura en base al esquema espacial y funcional de la casa.
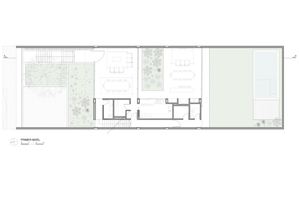
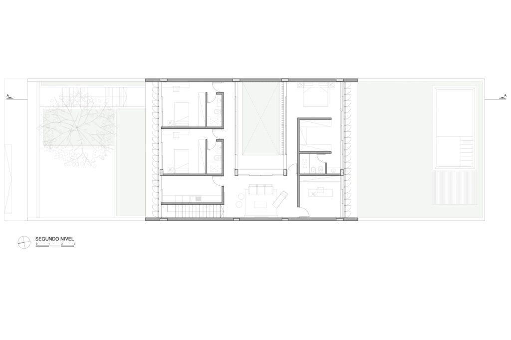
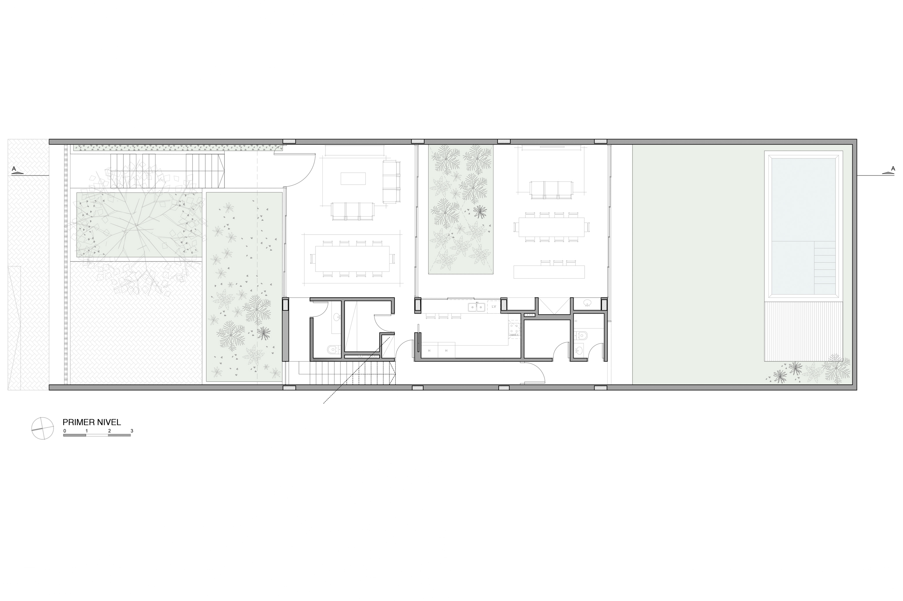
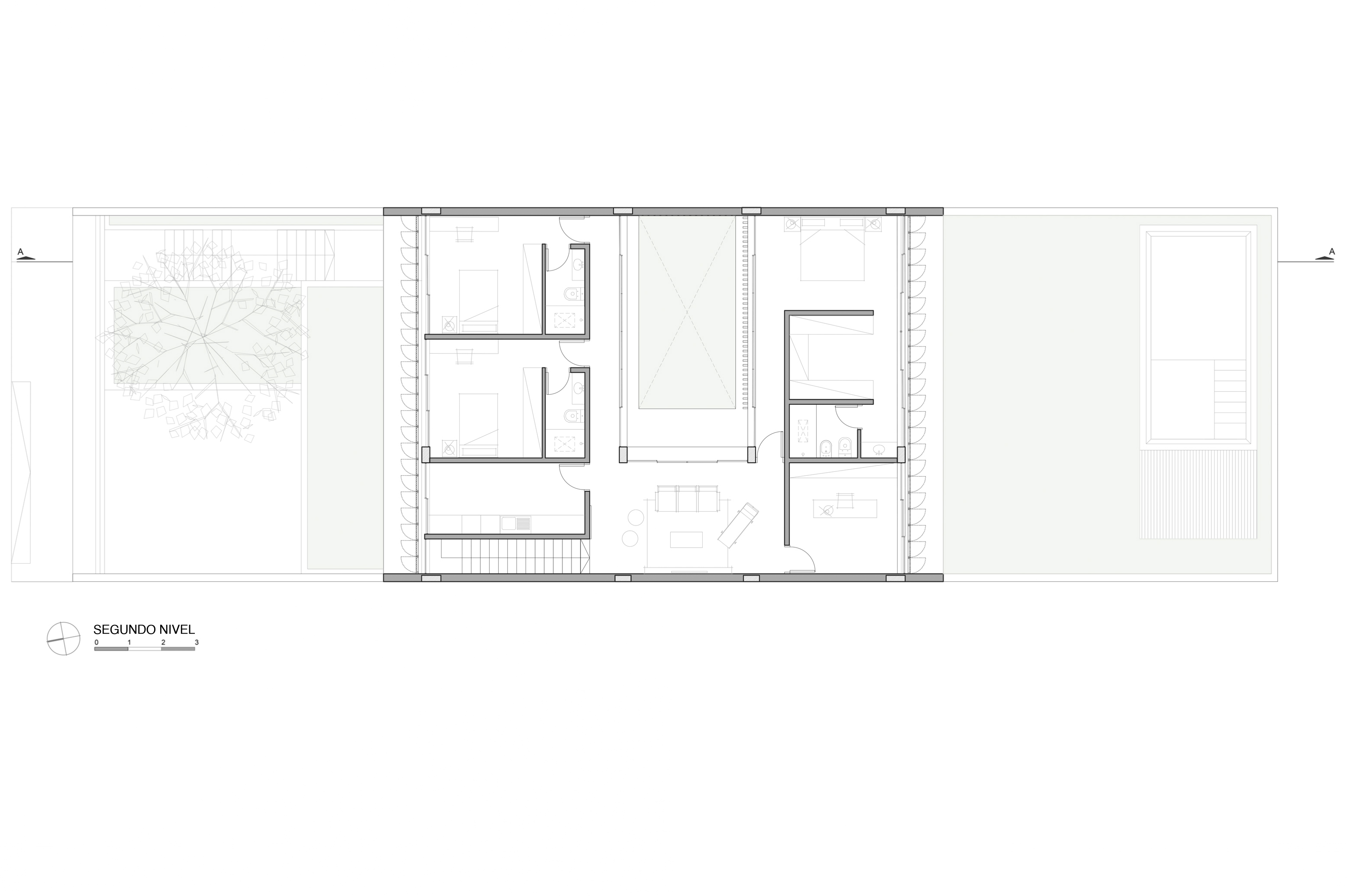
El terreno donde se implanta la vivienda presenta un desnivel significativo y un árbol que nos recibe, lo que nos permitió disponer la casa en tres niveles: el estacionamiento y el área de servicio en el nivel inferior, el área social en el primer nivel y el área privada en el segundo nivel. Un terreno de medidas convencionales se convierte así en un sistema de espacios relacionados mediante patios que distribuyen luz, oxígeno, ventilación y biodiversidad.
La transparencia en el área social del primer nivel se contrasta con la opacidad del segundo nivel, donde se encuentran los dormitorios, el lavadero y la oficina, programas que requieren mayor privacidad.
La pertinencia de proyectar una vivienda que permita la amplitud espacial, vinculándose pero protegiéndose del exterior, con sombras, capacidad de respirar y relación con la materia y la naturaleza, convierte a la arquitectura en una respuesta directa a la realidad local.