







































- Superficie: 195 m²
- Año: 2022
- Tipo: Vivienda
- Ubicación: San Bernardino, Paraguay
Arquitectos
Horacio Cherniavsky
Viviana Pozzoli
Patricio Duarte
Gabriela Ocampos
Franco Pinazzo
Rolph Vuyk
Fotógrafo
Federico Cairoli
http://www.federicocairoli.com/
contacto@federicocairoli.com
Mobiliario
Artigiani
Reducir la arquitectura a los mínimos elementos es como escribir un haiku: todo el esfuerzo se concentra en contar algo de la manera más concisa y eficiente posible.
Recordando la máxima Miesiana del “fast nichts” (casi nada), iniciamos el proceso proyectual de resolver la vivienda para una pareja joven que decide apartarse de la ciudad en búsqueda del silencio y la serenidad. La economía de medios y la austeridad nos sugieren una respuesta.
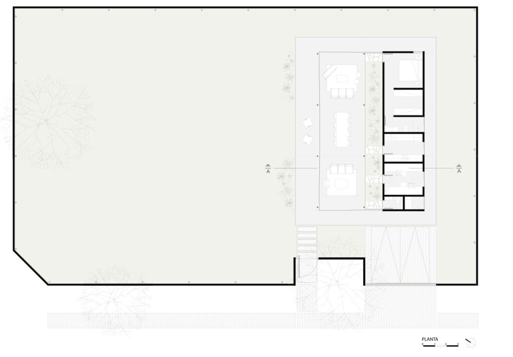
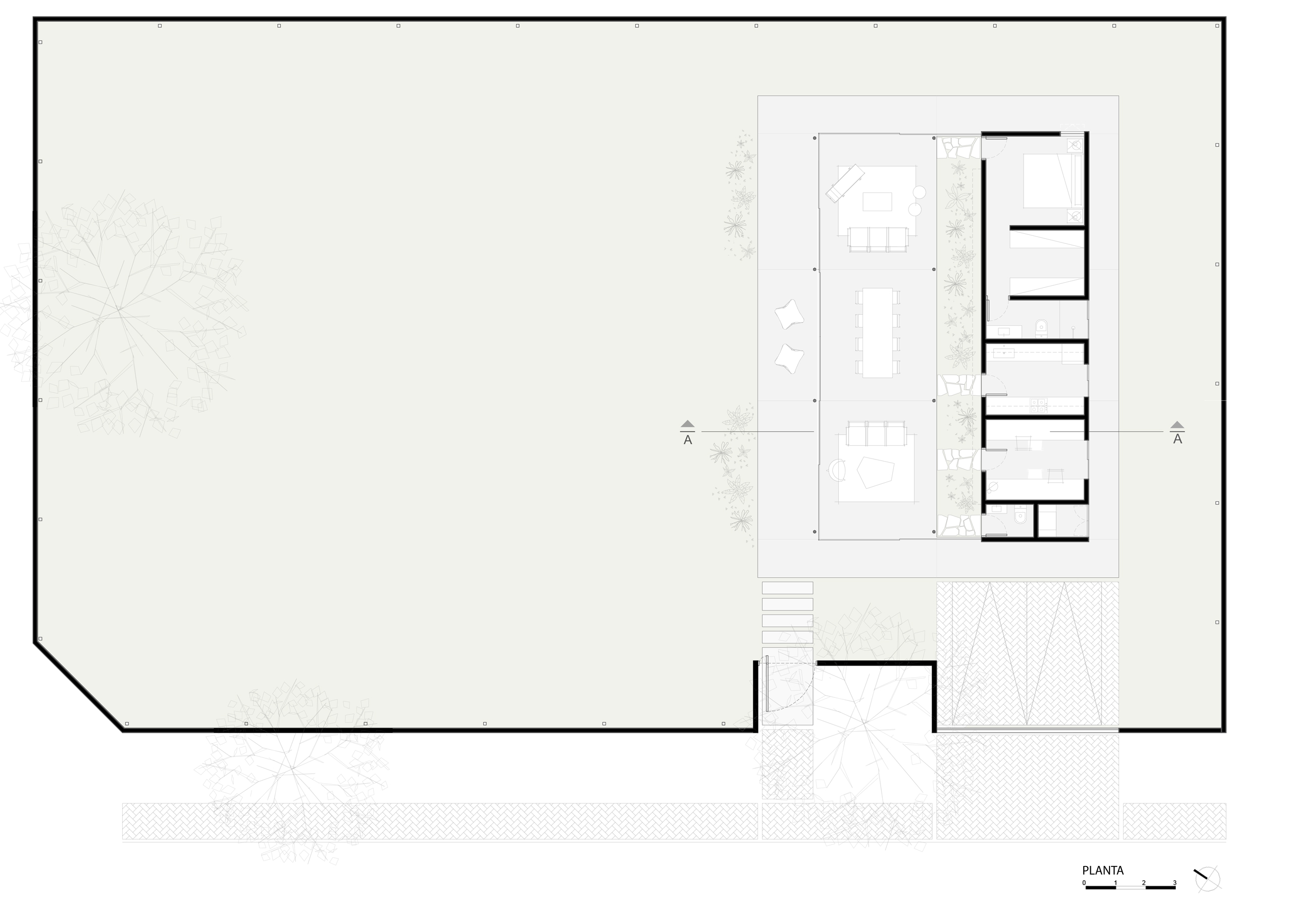
El proyecto se divide en dos sectores, separando los espacios servidos y sirvientes. Por un lado, el gran espacio social, abierto, con conexión al exterior y transformable en un gran espacio intermedio, se convierte en una gran galería de recepción, configurado por aberturas de vidrio y paneles de madera. Separado por un jardín interior está el sector cerrado, privado, donde se ubican los programas de apoyo, como la cocina, los baños, la oficina y el dormitorio, construidos con mampostería de ladrillo.
El jardín interior es la pausa y la transición de los dos sectores de la casa. Mediante piedras naturales se marca el camino que representa un cambio de ritmo entre un sector y otro. El tragaluz ubicado encima del jardín se encarga de bañar a las plantas de luz natural y permite observar, siquiera por un momento breve, el cielo desde adentro de la casa. Esta mirilla longitudinal es un observatorio de las nubes y la esfera celeste.
La escala del proyecto, la proporción de los elementos y los materiales utilizados reflejan la voluntad de construir la síntesis de un proceso reflexivo sobre la administración de los recursos y la maximización de los resultados.